Stronach International Incorporated logo Return to portfolio

Adena Poultry & Rabbit Works #001

A vertically integrated poultry, duck, and rabbit network that monetizes every output stream while anchoring SII’s Fair Enterprise profit-sharing charter on the ground.

Revenue Composition

Six revenue lines span poultry, duck, rabbit, and circular fertilizer outputs.

Each modality feeds the Adena network while balancing commodity risk: broilers and layers deliver steady cash flow, ducks differentiate premium supply, rabbits anchor value-add processing, and compost closes the loop for regenerative soil programs.

Figures reflect steady-state annual performance for a single Adena Poultry & Rabbit Works campus.

  • Chicken broiler $1.102M annual revenue 17.9% of total
  • Chicken layer (eggs) $495K annual revenue 8.1% of total
  • Duck broiler $1.463M annual revenue 23.8% of total
  • Duck layer (eggs) $742K annual revenue 12.1% of total
  • Rabbit meat $1.92M annual revenue 31.3% of total
  • Compost & fertilizer $420K annual revenue 6.8% of total

Percentages round to the nearest tenth; totals reflect steady-state performance per site.

Financial Snapshot

Steady-state gross revenue

$6.142M

Annual revenue per site once barns, processing, and distribution operate at capacity.

Net operating profit

$3.892M

Pre-CAPEX earnings from the integrated livestock stack (63% EBITDA margin).

CAPEX facility

$7.0M

Interest-free, seven-year amortization aligned to Fair Enterprise repayment waterfalls.

Team strength

19 FTE

Average compensation ~$54.9K plus $20K in profit share through the Fair Enterprise pool.

CAPEX payback

7 years

Post-repayment net profit climbs to ~$4.89M annually, boosting all profit-share buckets.

Channel mix

6 primary lines

Six-line mix spanning chicken broilers, chicken layers, duck broilers, duck layers, rabbit meat, and compost products to diversify cash flow.

Project Images

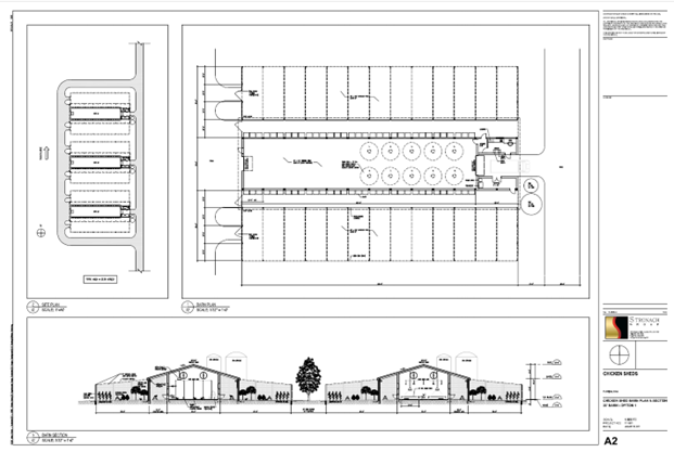
Architectural diagram detailing the chicken broiler barn layout and equipment
Architectural diagram of the broiler barn illustrating equipment placement, ventilation, and clean workflow.
Exterior render of the chicken barn design featuring passive ventilation
Exterior render of the mixed-species barn showing natural light scoops and passive ventilation.
Interior render of the barn with automated feed and water lines
Interior render highlighting automated feed delivery, watering systems, and cleanable surfaces.
Perspective render showing biosecure entry sequence
Perspective render emphasizing the biosecure entry vestibule and hygiene protocols.
Perspective render highlighting natural ventilation louvers
Exterior perspective showing ventilation louvers and translucent daylighting panels.
Site render showing barn placement across the grounds
Site-wide render illustrating barn orientation, service roads, and stormwater buffers.
Operations render focusing on utility hookups and feed silos
Operations render detailing utility hookups, feed silos, and harvest staging zones.
Interior render showing brooder zones and lighting layout
Interior layout render noting brooder zones, dimmable lighting, and automated curtains.
Exterior render depicting covered loading docks
Exterior render depicting covered loading docks and biosecure traffic flow.
Interior render showing processing-ready crate staging
Interior vignette showing crate staging, climate control, and humane handling gates.
Render highlighting integrated solar arrays on barn roofs
Roofline render highlighting integrated solar arrays and rainwater recapture.
Render demonstrating modular expansion bays
Expansion concept render illustrating modular bays for future capacity growth.
Render capturing the Fair Enterprise team gathering
Team culture render capturing the Fair Enterprise crew coordinating daily stand-up.

1. Investment Highlights

  • Closed-loop revenue stack

    Poultry, duck, rabbit, processing, logistics, and fertilizer combine into a diversified cash engine under one roof.

  • Quota-backed growth

    New Entrant approvals and SII mentorship accelerate barn commissioning while protecting margin against commodity swings.

  • Fair Enterprise talent flywheel

    Profit-sharing scorecards and the Stronach Academy produce owner-operators who stay to scale the network.

  • Replication-ready economics

    Standardized 18-barn campuses plus shared services support a 10-site rollout targeting a $200M+ valuation.

2. Operating Model

A lean team of 19 employees runs the mixed-species complex. Profit-sharing scorecards, continuous-improvement rituals, and mentorship pipelines surface frontline insights directly into capital planning.

2.1 Workforce Plan

Function FTE Key Duties
Chicken broiler barns 3 Feeding, welfare, catch/load coordination
Chicken layer barns 2 Egg collection, nesting care
Duck broiler barns 2 Water system upkeep, welfare
Duck layer barns 2 Egg collection, flock health
Rabbit barns (6 units) 2 Colony care, breeding management
Hatchery 2 Set, candle, pull, chick/duckling dispatch
Processor 4 Humane slaughter, evisceration, fabrication
Warehouse & logistics 2 Cold storage, order prep, deliveries
Total 19

Compensation progression

Ontario's wage floor of $17.20/hr sets the baseline. Year 1 base rates reflect current CAD payroll allocations, while the Fair Enterprise employee pool (~$389K annually, ≈$20,487 per FTE) lifts total compensation well above starting salaries.

Team lane FTE Year 1 base Year 3 base Year 5 base Profit share / FTE Profit share / team
Chicken broiler barns 3
$17.50/hr
$36,400/yr
≈$56,887 with profit share
$18.90/hr
$39,312/yr
≈$59,799 with profit share
$20.30/hr
$42,224/yr
≈$62,711 with profit share
≈$20,487
FY1 allocation
≈$61,460
Shared across 3
Chicken layer barns 2
$16.50/hr
$34,320/yr
≈$54,807 with profit share
$17.82/hr
$37,066/yr
≈$57,553 with profit share
$19.14/hr
$39,811/yr
≈$60,298 with profit share
≈$20,487
FY1 allocation
≈$40,980
Shared across 2
Duck broiler barns 2
$17.00/hr
$35,360/yr
≈$55,847 with profit share
$18.37/hr
$38,189/yr
≈$58,676 with profit share
$19.72/hr
$41,018/yr
≈$61,505 with profit share
≈$20,487
FY1 allocation
≈$40,980
Shared across 2
Duck layer barns 2
$16.50/hr
$34,320/yr
≈$54,807 with profit share
$17.82/hr
$37,066/yr
≈$57,553 with profit share
$19.14/hr
$39,811/yr
≈$60,298 with profit share
≈$20,487
FY1 allocation
≈$40,980
Shared across 2
Rabbit barns 2
$16.92/hr
$35,200/yr
≈$55,687 with profit share
$18.28/hr
$38,016/yr
≈$58,503 with profit share
$19.63/hr
$40,832/yr
≈$61,319 with profit share
≈$20,487
FY1 allocation
≈$40,980
Shared across 2
Hatchery 2
$17.00/hr
$35,360/yr
≈$55,847 with profit share
$18.37/hr
$38,189/yr
≈$58,676 with profit share
$19.72/hr
$41,018/yr
≈$61,505 with profit share
≈$20,487
FY1 allocation
≈$40,980
Shared across 2
Processor 4
$15.79/hr
$32,840/yr
≈$53,327 with profit share
$17.05/hr
$35,467/yr
≈$55,954 with profit share
$18.32/hr
$38,098/yr
≈$58,585 with profit share
≈$20,487
FY1 allocation
≈$81,950
Shared across 4
Warehouse & logistics 2
$15.47/hr
$32,188/yr
≈$52,675 with profit share
$16.71/hr
$34,763/yr
≈$55,250 with profit share
$17.96/hr
$37,340/yr
≈$57,827 with profit share
≈$20,487
FY1 allocation
≈$40,980
Shared across 2
Progression checkpoints occur at annual performance reviews. Profit-share calculations use audited net profit; per-lane figures will adjust proportionally as the $389K employee pool scales with expansion.

Compensation Summary

Base wages: $654,056/year (average $34,424 per FTE). Profit share: $389,248/year (average $20,487 per FTE). Total average compensation: ~$54,911 per employee.

2.2 Circular Fertilizer Program

Poultry litter, rabbit manure, and spent bedding are aerated with biochar to produce roughly 6,000 tonnes of composted fertilizer per year. Ontario market demand for regenerative soil amendments supports a $70 per tonne selling price, yielding $420,000 in annual revenue after certification testing and bagging.

A small packaging crew and third-party hauling add $75,000 in annual operating expense, but the closed-loop program keeps waste out of landfill, underpins Adena Farms Organic Campus soil health, and creates a branded input for partner farms.

3. Financial Summary

3.1 Current Site Performance

Metric Value
Gross revenue $6,142,000 per year
Operating net profit (pre-CAPEX) $3,892,481 per year
Average employee compensation ~$54,911 per year
CAPEX facility $7M per site (0% interest, 7-year straight-line)

3.2 Unit Economics & P&L

Metric Value
Gross revenue $6,142,000
Operating expenses $2,249,519
Net operating profit (pre-CAPEX) $3,892,481
Net operating profit (post-CAPEX) $4,892,481
EBITDA margin (pre-CAPEX) 63%
EBITDA margin (post-CAPEX) 80%

3.3 Revenue Composition

Barn Group Gross Revenue
3 chicken broiler barns $1,102,000
3 chicken egg barns $495,000
3 duck broiler barns $1,462,500
3 duck egg barns $742,500
6 rabbit barns $1,920,000
Circular fertilizer products $420,000
Total $6,142,000

Composting output: ~6,000 tonnes per year sold at $70 per tonne equals $420,000 of recurring revenue.

3.4 Capital Requirements

  • $7M umbrella facility per site at 0% interest, repaid $1M annually over seven years.
  • Construction sequencing activates barns, processor, and cold storage inside the first operating year.
  • Appendix B details per-barn capital requirements.
Project Element Low Estimate High Estimate
18 barns $3,510,000 $5,940,000
Processor & cold storage $1,250,000 $2,500,000
Site total $4,760,000 $8,440,000

3.5 Fair Enterprise ROI Pathway

The chart below stages gross revenue and net profit through the first four operating years as barns, processing, and distribution come online. It also tracks the $7M CAPEX balance alongside the proportional Fair Enterprise allocations. CAPEX amortizes evenly over seven years; once repaid, net profit and each profit-share bucket gain the full $1M annual lift.

4. Fair Enterprise Governance

The Fair Enterprise operating system turns profit sharing into a strategic lever while embedding Frank Stronach's Economic Charter principles into daily operations. In 1957, Stronach opened a one-man tool-and-die shop in a rented Toronto garage. By inviting his foreman into one-third ownership instead of losing him, productivity soared and Magna International's ownership-sharing DNA was born. Magna ultimately grew to 180,000 employees and $40B in revenue on the strength of that model: 20% of profits to shareholders, 10% to employees (70% cash, 30% shares), 6% to management, 7% to research, 2% to charity, with the balance retained for taxes and reinvestment. Adena mirrors that playbook so every contributor becomes a partner in performance.

  • 10% employee profit pool, distributed quarterly, creates transparency and shared accountability.
  • Mentorship ladder promotes high performers into ownership roles, mirroring Magna’s foreman-to-partner pathway.
  • Governance council with labor, management, ownership, and community seats approves budgets for R&D, social responsibility, and reinvestment.
  • Advocacy mandate keeps small-business regulation workable and channels retained earnings into local resilience.

4.1 Profit Distribution Waterfall

Category Share Allocation (Pre-CAPEX) Notes
Shareholder dividends (ownership) 20% $778,496 Stable annual return
Employee equity & profit pool 10% $389,248 Distributed quarterly
Research & technology 7% $272,474 Productivity & sustainability capex
Management participation 6% $233,549 Leadership incentives & training
Social responsibility fund 2% $77,850 Community & philanthropic commitments
CAPEX repayment Fixed $1,000,000 Straight-line $1M/year (0% interest)
Reinvestment & taxes (SII) Residual $1,140,864 Retained earnings, tax reserve
Total net operating profit 100% $3,892,481
Post-CAPEX repayment, the profit pool gains $1,000,000, lifting annual dividends to ~$978,000, the employee pool to ~$489,000, and reinvestment reserves above $1.3M per site.

4.2 Lessons from Frank Stronach’s Playbook

  • Share the wealth, share the responsibility. When teams participate directly in profit, they stay and scale the enterprise instead of leaving to compete.
  • Build a clear Charter of Rights. Transparent formulas for profit splits and employee treatment foster trust—Magna's Corporate and Employee Charters remain the blueprint.
  • Think long-term. Sustained reinvestment in people, research, and community outruns quarter-by-quarter thinking and compounds value.
  • Decentralize to stay entrepreneurial. Empowered divisions stay close to customers and continue improving margin, even as the network grows.
  • Make Fair Enterprise the default. Economic democracies close the gap between investors and operators, keeping Adena's workforce aligned with the mission that took Magna from a garage to a global powerhouse.

5. Growth Strategy

  • Add one new site every 12–18 months via federated ownership and shared services.
  • Maintain margin discipline through centralized procurement, training, and QA while preserving operator independence.
  • Scale the mentorship pipeline so each entrant graduates with Fair Enterprise governance fluency and capital support.

5.1 Network Growth Projection (10-Year Horizon)

Projected site rollout drives a steady climb in gross revenue while profit shifts from repayment obligations to post-repayment upside.

Year Active Sites Gross Revenue ($M) Net Profit During Repayment ($M) Net Profit Post-Repayment ($M) Notes
1 10 61.4 38.9 All sites in repayment
2 20 122.8 77.8 All sites in repayment
3 30 184.3 116.8 All sites in repayment
4 40 245.7 155.7 All sites in repayment
5 50 307.1 194.6 All sites in repayment
6 60 368.5 233.5 All sites in repayment
7 70 429.9 272.5 All sites in repayment
8 80 491.4 272.5 48.9 First 10 sites post-repayment
9 90 552.8 272.5 97.8 Years 1–2 cohorts post-repayment
10 100 614.2 272.5 146.7 Years 1–3 cohorts post-repayment

Total Year-10 net profit: ~$419.2M combining repayment and post-repayment cohorts.

5.2 ROI Milestones

  • CAPEX balance clears by the end of Year 7; net profit rises from $3.89M to $4.89M beginning Year 8.
  • Shareholder dividends increase from ~$778K to ~$978K per site post-repayment.
  • Employee profit pool expands from ~$389K to ~$489K; management participation grows from ~$234K to ~$294K.
  • Owner-operator share (26%) climbs from ~$1.01M to ~$1.27M annually once CAPEX is repaid.

6. Implementation Roadmap

  1. Quota & Compliance (Months 0–3): Secure New Entrant approvals, finalize biosecurity protocols, and file the Fair Enterprise charter.
  2. Capital Deployment (Months 3–12): Construct 18 barns plus processor and cold storage; sequence utilities, structures, and equipment for staged commissioning.
  3. Talent & Mentorship (Months 6–12): Recruit 19 FTEs, launch the Stronach Academy cohort, and embed profit-sharing scorecards in onboarding.
  4. Closed-Loop Commissioning (Months 9–15): Synchronize hatchery-to-distribution workflow, activate waste-to-compost systems, and complete third-party food safety audits.
  5. Fair Enterprise Council Launch (Month 12): Seat representatives, approve R&D and community budgets, and publish the annual governance charter.
  6. Scale Replication (Months 12+): Package the site playbook, sponsor qualified employees into new entrant applications, and achieve 12–15% cost reductions on each subsequent build.

7. Appendices

Appendix A: Operating Expense Breakdown

Operating cost distribution highlights where $2.25M in annual site spend is concentrated.

Percentages reflect each category's share of steady-state operating expenses.

Category Annual OPEX
Feed and bedding $850,463
Utilities $255,000
Processing and packaging $160,000
Health and biosecurity $70,000
Repairs and maintenance $185,000
Fertilizer packaging & hauling $75,000
Labor (19 FTE @ $34,424) $654,056
Total $2,249,519

Appendix B: Per-Barn Capital Detail

Capital mix (high estimate) emphasizes the dominance of building shells in per-barn budget planning.

Visualization uses the high-estimate scenario to illustrate allocation across major cost buckets.

Category Low Estimate High Estimate
Site prep & utilities $10,000 $20,000
Building construction $150,000 $250,000
Equipment & systems $30,000 $50,000
Permits & compliance $5,000 $10,000
Per barn total $195,000 $330,000

Appendix C: Barn-Level Production Metrics

Revenue yield per barn shows rabbit and duck programs anchoring the production portfolio.

Chart depicts annual gross revenue contribution per barn across all livestock modalities.

Barn Type Units per Year (per barn) Gross Revenue
Chicken broiler 18,433 birds $367,333
Chicken layer (eggs) 75,000 dozen $165,000
Duck broiler 19,500 birds $487,500
Duck layer (eggs) 75,000 dozen $247,500
Rabbit meat 8,000 rabbits $320,000

Full-resolution visuals are presented in the image showcase near the beginning of this plan for quick reference during presentations or printouts.